
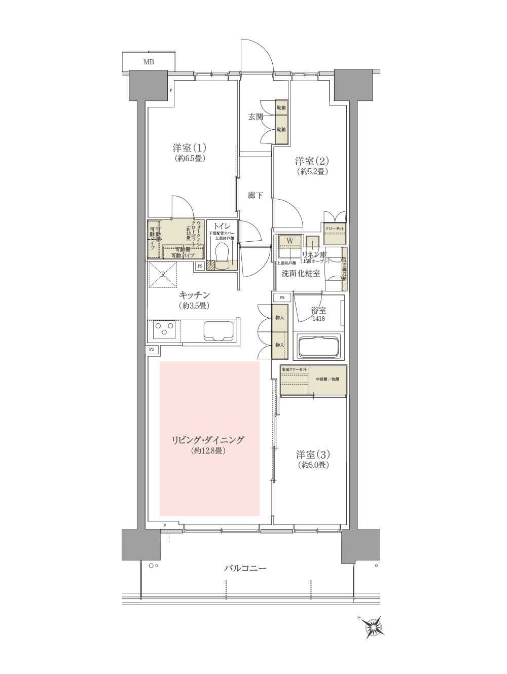
Etype
- 72.79㎡(約22.01坪)
- 3LDK+WIC
□バルコニー面積:11.02㎡(約3.33坪)

- 心地よい南西側にリビング・ダイニングと洋室1部屋をレイアウト。
- 引き戸の開閉でリビングと洋室(3)を一体利用したり各個室として利用可能。
- 布団を収納できる奥行きと効率良く衣類整理できる「布団クローゼット」を設置。
WIC:ウォークインクローゼット
- 収納
- 床暖房範囲
- 通風
- 採光
※掲載の間取図は計画段階の図面を基に描き起したもので今後変更になる場合があります。また、梁・下がり天井などの表記は省略しております。
Etype 205号室
販売価格 4,949万円(税込)
◎頭金9万円、借入金4,940万円でご購入の場合(ただし別途諸経費や手数料が必要となります)
◎変動金利(融資手数料型/0.595%・40年返済)
ボーナス支払い併用の場合
- 月々返済79,848円
年12回【月々支払い元本:3,410万円】 - ボーナス時加算額215,193円
年2回【元本:1,530万円】
【提携ローンのご案内】
●店頭金利2.875%から、借入全期間▲2.280%の金利引下げを利用しています。ただし、提携ローンの金利・借入条件は2025年4月適用のものであり、今後変更が生じる可能性がございます。提携ローンの金利決定時期はローン実行時(引き渡し時期)となります。また、ローンにかかる諸費用は別途となります。●融資限度額/100万円以上2億円以下(10万円単位)●融資期間/1年以上40年以内[変動金利コース]、[固定金利特約コース]の2つの金利コースからお選びいただけます。●利率/変動金利 年0.595%●取扱金融機関/りそな銀行