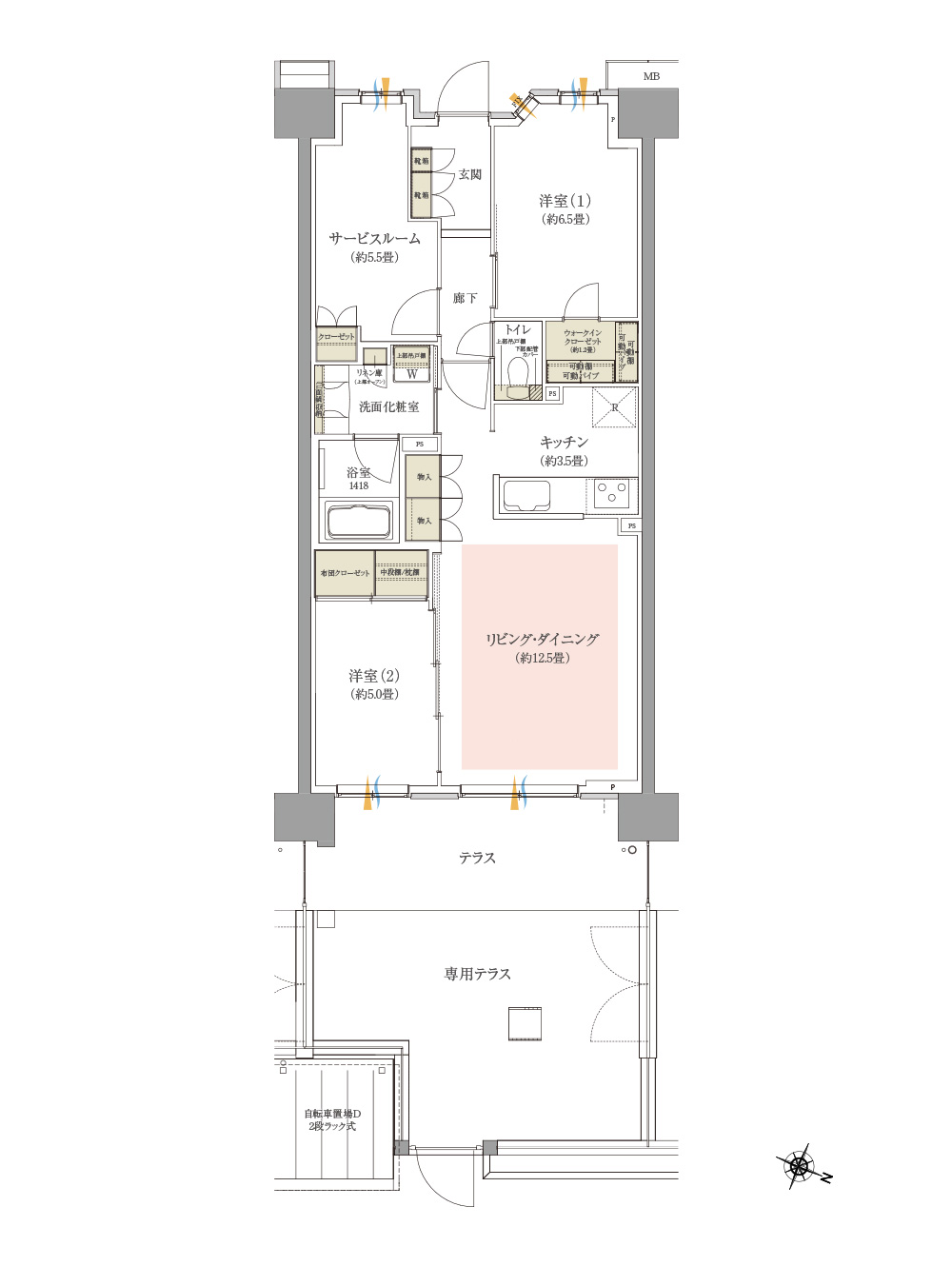
Jgtype
- 73.05㎡(約22.09坪)
- 2LDK+S+WIC
□テラス面積:11.40㎡(約3.44坪)
□専用庭面積:22.52㎡(約6.81坪)
- 一戸建て感覚で暮らす楽しみが多様に広がる、
テラス・専用テラス付きプラン。 - 自転車置場からテラスへ直接出入りできる、
使い勝手のよい専用入り口をご用意。 - ウォークインクローゼット、布団クローゼット、
リビング物入など住まいの随所に収納が充実。
S:サービスルーム(納戸)
WIC:ウォークインクローゼット
- 収納
- 床暖房範囲
- 通風
- 採光
※掲載の間取図は計画段階の図面を基に描き起したもので今後変更になる場合があります。また、梁・下がり天井などの表記は省略しております。
