BASE OF HAPPINESS
心地よい暮らしの基点となる
快適空間
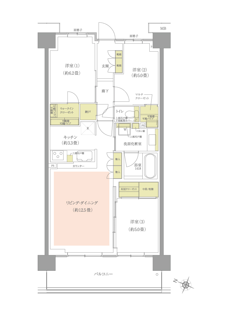
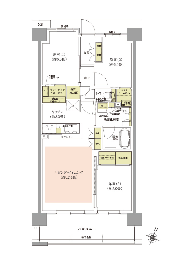
3LDK・72㎡台中心※1のゆとりと
開放感溢れるプランニング。
便利に落ち着いて暮らせる環境で伸びやかな日々をお過ごしいただくために。
首都圏の分譲マンションでは、住戸面積の狭小化が進む一方で、住空間には3LDK・72m²台中心※1の広さを実現。
南東向き中心※2の住棟配置により、豊かな陽光にも恵まれた開放的なプランニングを追求しました。
※1.分譲戸数252戸中137戸が3LDK・72㎡台。 ※2.分譲戸数252戸中135戸が南東向き。
対象期間:発売が(2013年1⽉〜2023年7⽉15⽇までのMRC調査・捕捉に基づく分譲マンションデータの範囲内)データ資料:MRC・2023年8⽉号 作成2023.08.25 (有)エム・アール・シー
スムーズな生活動線を叶える
専用駐輪場付プラン。
南東向きの住棟「エアリーサイト」の1階には専用駐輪場付プランをご用意。
リビング・ダイニングの開口部には外側から鍵をかけられるサッシを採用し、バルコニー側から外出できるよう配慮。
階段を下りた場所に設置した駐輪場は、自転車2台分をゆったりと置くことができ、公道へ直接出入りも可能です。
専用駐輪場付きプランにお住まいの方は、敷地内の共用部駐輪場にも駐輪することができます。
専用駐輪場付きプランの特徴
- 豊かな植栽の潤い
- 公道より最大約1.5m高い
- 4台以上の自転車所有を実現※専用駐輪場2台以上+共用部駐輪場2台
- 浸水対策の実施※防潮板の設置が可能
安全性にも配慮されたプランニング
開口部の鍵付きサッシはセンサー式の警報機を装備。人感センサー付き照明も設置し、防犯対策を施しています。また、バルコニー手摺には、万一の大規模な水害に備え、防潮板が設置できるようになっています。
0120-087-194












